Unsere gemeinsame Projekt-Pinnwand

Persönlicher Download Center

Hier kannst Du Angebote oder vertrauliche Dokumente für Deinen Kunden hinterlegen.
Die Daten können nur über ein Kennwort vom Kunden eingesehen werden.

Kundenkommunikation

Hier können Sie uns kurze Nachrichten zum Projekt zukommen lassen und wir können Ihnen direkt hier darauf antworten.

  1. Kunde 19.08.2025 10:09
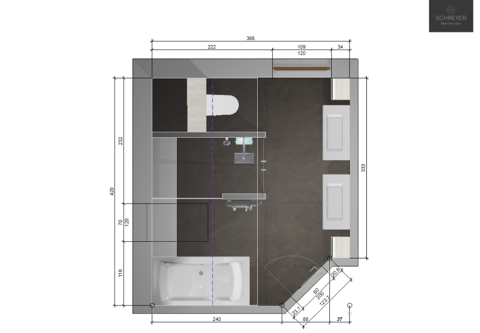
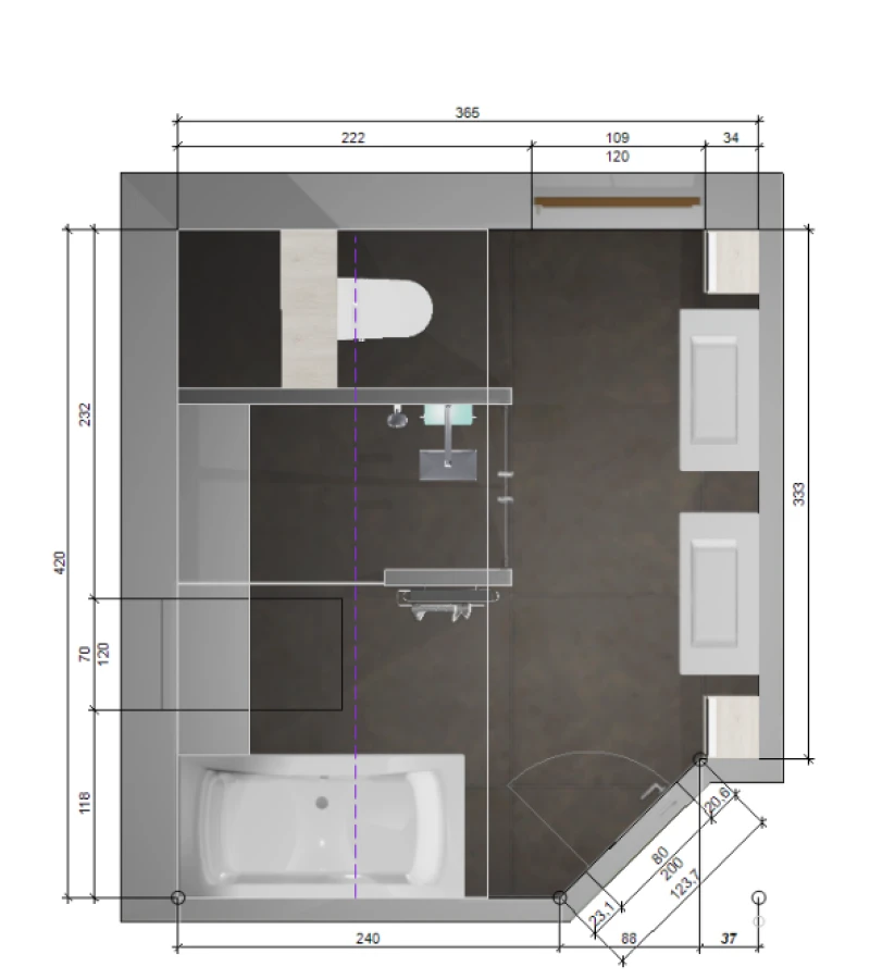
    Können Sie mir bitte das Bild mit dem Flächentextil nochmal einfügen? Danke
  2. Projektleiter 01.09.2025 11:08
    Sie finden das neue Bild unter "Planänderungen"
  3. Kunde 01.09.2025 11:19
    Können wir am kommenden Freitag einen Termin vereinbaren?
  4. Projektleiter 01.09.2025 11:20
    Gerne... um 10 Uhr wäre noch ein Termin frei.
Zurück zur Übersicht